Biomass Hot Air Furnace

Biomass Hot Air Furnace

High-Efficiency Industrial Hot Air Solution for Drying & Heating

The biomass hot air furnace is an efficient heating system designed for industrial drying and heating applications.
It uses biomass fuels such as wood chips, pellets, and coal to generate clean hot air with stable performance and low operating cost.

industrial biomass hot air furnace system for drying applications

Product Overview

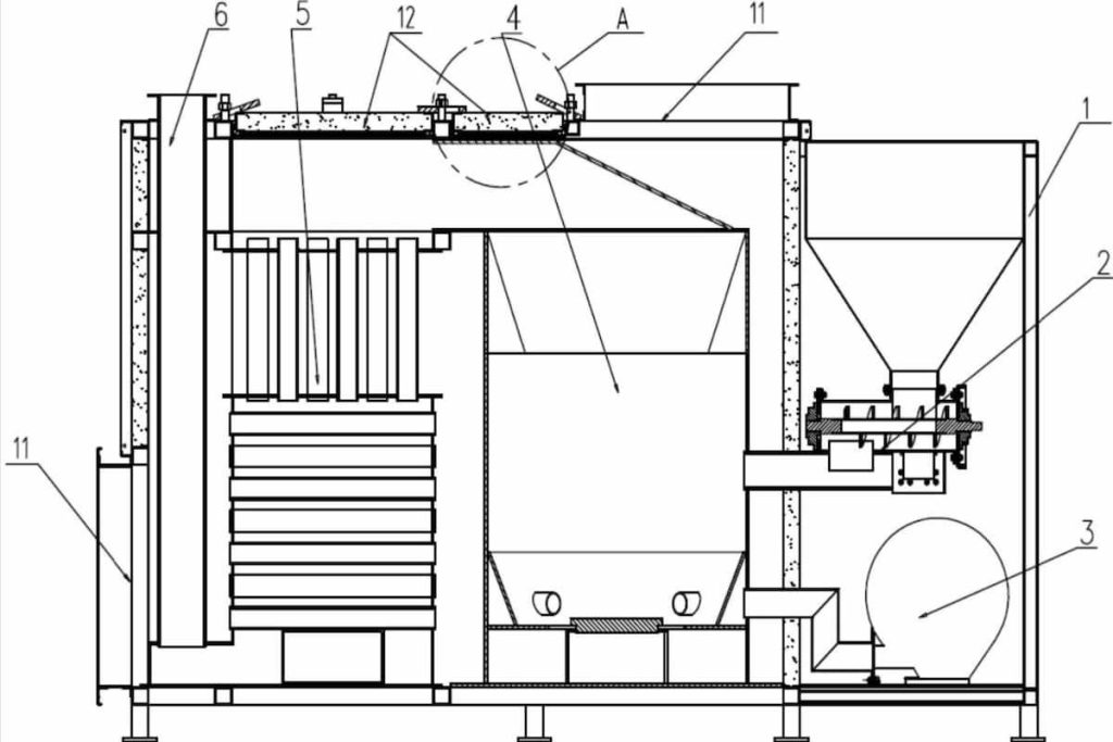
The SWL series biomass hot air furnace integrates combustion and heat exchange into one system.
It adopts indirect heating technology, ensuring complete separation between flue gas and hot air, resulting in clean and pollution-free heating.

biomass hot air furnace structure and heat exchange system

Key Features

  • Indirect heating, no contamination
  • Thermal efficiency up to 60–75%
  • Fast temperature rise
  • Compact structure and easy installation
  • Long service life with high-temperature resistant design
  • No dust accumulation, low maintenance

Applications

  • Grain drying
  • Food processing
  • Wood drying
  • Agricultural products
  • Chemical materials
  • Warehouse heating and dehumidification

Technical Specifications

ModelOutput (Kcal/h)Temp (℃)Fuel Consumption (kg/h)
SWL550,000<25015
SWL10100,000<25022
SWL20200,000<25045
SWL50500,000<330118
SWL1001,000,000<220246

Cost Advantage

Compared with traditional boiler systems, the biomass hot air furnace offers lower investment cost and operating expenses.
The system cost is about 50% of conventional boiler heating systems.

Related Systems

Our system can be integrated with the following solutions:

Biomass Burner

Biomass Gasification System

Get a Power Generation Proposal

    WeChat (Scan QR Code)

    WeChat QR code for Yitong Energy biomass solution contact